Střešní nástavba Praha Malvazinky

Střešní nástavba Praha Malvazinky
Studie 2004
Projekt
Realizace 2006
Autoři Jan Šépka, Simona Fišerová, Petr Hájek, Tomáš Hradečný
Spolupráce jan Kolář

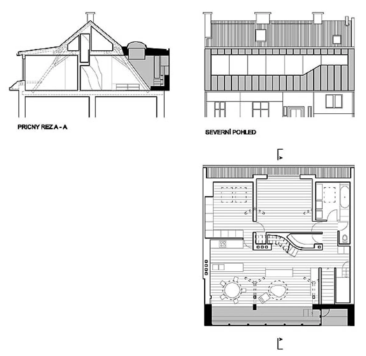
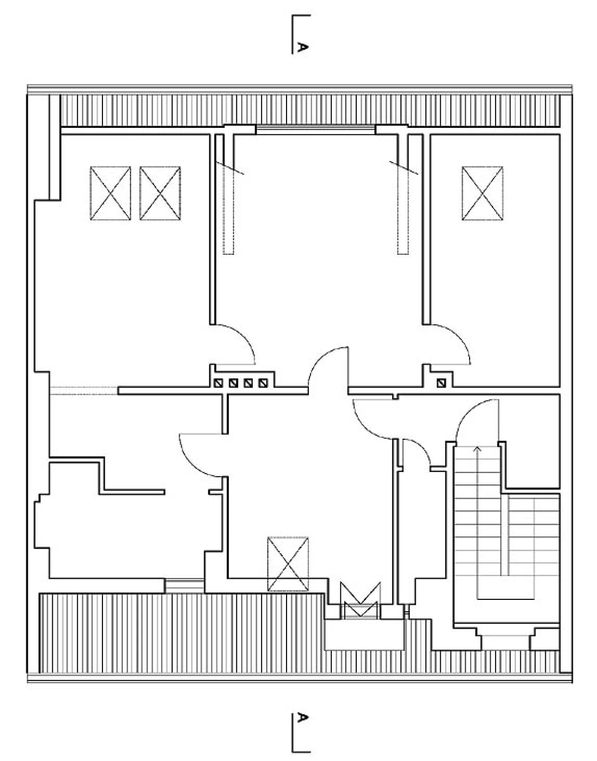
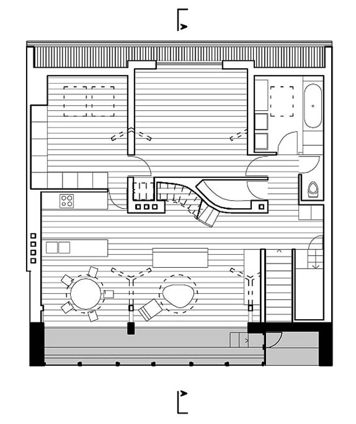
Stávající půdní prostor řadového rodinného domu z třicátých let 20. století nevyhovoval svojí dispozicí novým nárokům majitele. Rozhodli jsme se o razantní řešení, které jednak vylepšuje funkční uspořádání podkroví a zároveň výrazně zvětšuje celkovou půdorysnou plochu bytu. Ke stávajícímu krovu je přisazena nová hmota s rovnou střechou předstupující přes půdorys celého domu. Nová hmota masky je propsaná i do interiéru, včetně prořízlého hledí, které reaguje na výškové uspořádání vnitřku. Velký průzor hledí je obrácen severním směrem na Prahu. Díky střešním světlíkům umístěným nad jídelním a konferenčním stolem je do obývacího prostoru přivedeno jižní světlo. Stará část podkroví je ponechána v bílé barvě s dubovou podlahou. Nová maska je z OSB desek, krytá z vnější části titanzinkovým plechem. Další vložené prvky, jako je koupelna, wc, kuchyně a nábytek, jsou barevně odlišeny od původního podkroví.